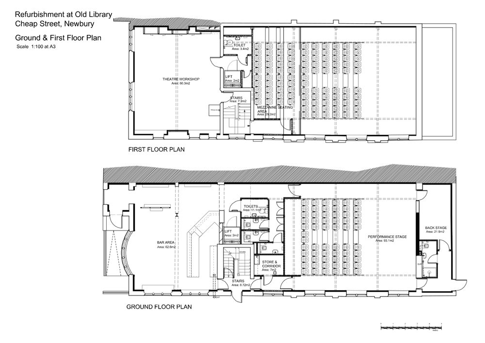
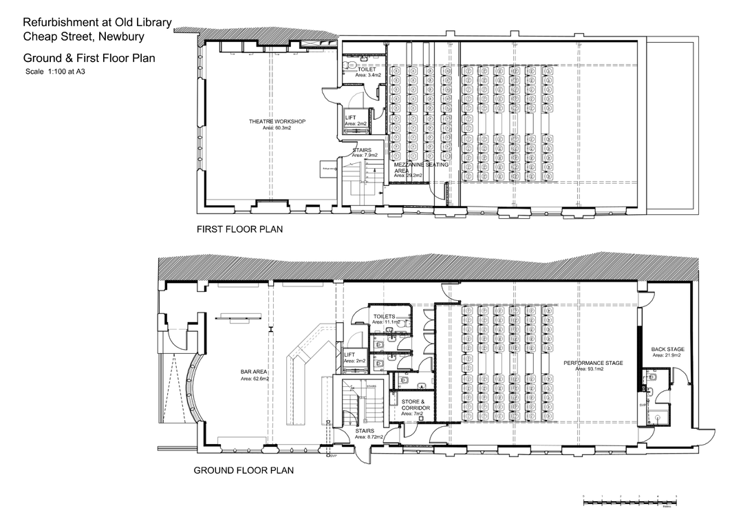
The Old Library plans are here!

We know that everybody is excited about the Old Library project and so we’re delighted to share the final plans and update you on how the project is developing.

What work is happening in the Old Library?
We have begun work in the building to demolish existing structures and remove the original toilets and kitchen equipment. We are now preparing for interior refurbishments with work to the ground and first floor as shown in the above plans, to create a Café Bar and two dedicated engagement spaces, one of which will also function as a studio theatre.
When will the new space open?
We are currently working through a small delay as we explore accessibility options for this beautiful old building and find solutions within our budget that will make the space an ambient and comfortable place for all. By working through all these solutions now, it means that construction can take place without any stoppages along the way. We hope that the building will be open later in 2025.
Will the building be open to the public?
Yes, the building will be open to the general public with a welcoming Café Bar and bookable creative activity and live performances.
How much do you still need to raise?
Of the £1.3m cost for the internal refurbishment we have raised over £1m which has allowed us to cover the costs of architects, planning and demolition work and to begin construction work in the building. We project that £150,000 will be raised from a mix of local stakeholder partners, with the final £100,000 raised as part of our continued public fundraising campaign to fit out the spaces before we can open to the public. We will be working with local businesses, charitable trusts and the local community to raise the remaining funds. As a charity we are careful in our approach to raising and using funds and want to ensure that the interior works will deliver on what West Berkshire needs from this new community arts space.
What activity will take place in the building once open?
The Old Library will be home to all of the Corn Exchange’s creative workshops and classes including our Youth Theatre and sessions such as Singing for Recovery, Dare to Dance, and Creative Art Journaling. The additional space at the Old Library will enable us to expand this area of our work to engage with 40,000 every year. The building will also have a flexible space that will function as a studio theatre for live performance.
Will there be the opportunity to hire the building?
There will be hire opportunities for the various spaces within the building, including the studio theatre and engagement spaces.
We can’t wait to reopen the Old Library so that it can once again be a hub for our community. We know the positive impact that engagement with creative activity can have and the work we can deliver at the Old Library will benefit thousands of people’s lives.